ようこそ ゲスト 様

前橋市 工場

粕川町月田 売工場

お問い合わせ番号:f11143-145203-MB0042
不動産/工場
粕川町月田 売工場
前橋市粕川町月田
上毛電気鉄道上毛線 粕川駅 ( 徒歩 23分 )
価格 1,880.00万円
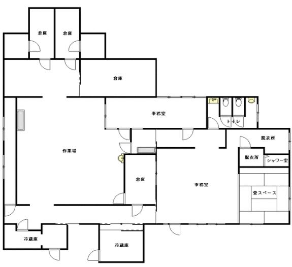
粕川町月田にある売工場です。
作業場だけでなく、倉庫や事務室・畳スペースなどもあります。
満室時収入
想定利回り
-
-
土地面積 1647.65m2
(498.41坪)
築年月 1997年11月
(平成9年11月)
駐車場 -
(-)
建物/専有
面積
235.60m2
(71.26坪)
地上階数
地下階数
1階
-
構造 木造
接道状況 公道 西 5.40m 
用途地域
都市計画 非線引き区域
地目 宅地
建ぺい率 70%
容積率 200%
計測方式 公簿
土地権利 所有権
不動産の現況 空き
入居/引渡 即時 
取引 仲介
物件登録日 2025年6月17日
情報更新日 2025年11月5日
地目:宅地

主要採光面:南向き

ローンシミュレーション

ローンシミュレーション条件
頭金 万  
ボーナス払い
(年2回)
万  
借入利率 %  
借入年数 年  
ローンシミュレーション結果
借り入れ金額 18,800,000
月々の返済額
(ボーナス月以外の年10回)
53,774/月
ボーナス月の返済額
(年2回)
53,774/月
年間の返済額 645,288
総支払額
(頭金含む)
22,585,080
  • ※元利均等返済方式でシミュレーションしています。
  • ※実際のご返済額はその他の条件により計算結果と異なりますので、予めご了承ください。
  • ※シミュレーション結果はご返済の目安としてご利用ください。また、将来のお借り入れを約束するものではありません。

粕川町月田 売工場 周辺地図

粕川町月田 売工場 のことならお気軽にご相談ください。
テナントショップ前橋(㈱ひとコミ開発)
TEL:027-288-0411
営業時間:10:00-18:00
定休日 :土曜・日曜・祝日
メールでのお問い合わせ

お電話の場合は「テナントショップを見ました。物件番号は < f11143-145203-MB0042 > です」と伝えていただくとスムーズにお応えできます。

  • 借りる
  • テナント・貸店舗を探す
  • オフィス・事務所を探す
  • 倉庫・工場を探す
  • 貸土地・借地を探す
  • ホテル・旅館等向け
  • コンビニ跡地
  • 居抜き物件
  • 地域で探す
  • 買う
  • 売買物件を探す
  • テナントショップ高崎はこちら
非公開物件情報
一般公開物件
195
会員用非公開物件
15
  • ログイン
  • 新規登録
  • 依頼する
  • 新着物件!未公開物件!地元に詳しい!
  • 物件リクエスト
検索する
スペース区切りの複合語句検索はできません

  • スマホで物件検索
  • 実績紹介
  • 物件管理
  • 会社概要・アクセス
  • ひと・コミュニケーションズ株式会社