ようこそ ゲスト 様

高崎市 賃貸事務所

小八木町 貸事務所(一括)

お問い合わせ番号:f11143-161110-T0436
賃貸事務所
高崎市小八木町
JR上越線 井野駅 ( 徒歩 12分 )
賃料 72.60万円
(坪単価:1.11万円)
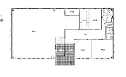
国道17号線から少し入った場所にある貸事務所です。
駐車場も多く、広く事務所としてお使いになりたい方におススメです。

エアコン2台以上
専有部分にトイレあり・トイレ2ヶ所あり
管理費 -
保証金
解約引
-
-
敷金
礼金
更新料
2ヶ月
2ヶ月(税別)
1ヶ月(税別)
建物/専有
面積
215.40m2
(65.15坪)
土地面積 880.89m2
(266.46坪)
築年月 2010年4月
(平成22年4月)
駐車場 有り無料/31台 所在階 1階 地上階数
地下階数
1階
-
構造 鉄骨造
用途地域 第一種住居地域
現況 使用中
入居/引渡 空予定 
引渡年月 2026年06月上旬
契約期間 3年
取引 仲介
物件登録日 2026年2月28日
情報更新日 2026年4月3日
賃貸保証:加入要 初回保証料:月額総賃料の100% 日本セーフティー
火災保険:加入要/3年間
駐車場:有 無料 空き31台 確認要
更新料:新賃料1ヶ月

リフォーム履歴■外装:2025年07月 外壁 屋根

小八木町 貸事務所(一括) 周辺地図

小八木町 貸事務所(一括) のことならお気軽にご相談ください。
テナントショップ前橋(㈱ひとコミ開発)
TEL:027-288-0411
営業時間:10:00-18:00
定休日 :土曜・日曜・祝日
メールでのお問い合わせ

お電話の場合は「テナントショップを見ました。物件番号は < f11143-161110-T0436 > です」と伝えていただくとスムーズにお応えできます。

  • 借りる
  • テナント・貸店舗を探す
  • オフィス・事務所を探す
  • 倉庫・工場を探す
  • 貸土地・借地を探す
  • ホテル・旅館等向け
  • コンビニ跡地
  • 居抜き物件
  • 地域で探す
  • 買う
  • 売買物件を探す
  • テナントショップ高崎はこちら
非公開物件情報
一般公開物件
284
会員用非公開物件
28
  • ログイン
  • 新規登録
  • 依頼する
  • 新着物件!未公開物件!地元に詳しい!
  • 物件リクエスト
検索する
スペース区切りの複合語句検索はできません

  • スマホで物件検索
  • 実績紹介
  • 物件管理
  • 会社概要・アクセス
  • ひと・コミュニケーションズ株式会社